电液动扇形闸门
用途

本系列扇形闸门广泛应用于建材、冶金、矿山、电力、化工、轻工、粮食等行业,是各类落料系统的卸料控制装置。
结构特点
本闸门结构简单,采用优质钢板焊接而成,采用电液推杆驱动,运行平稳,故障率低,可以快速切断料流。
性能参数
| 适用介质 |
适用温度 |
介质流速 |
| 晶料、固体颗粒物料、粉状物料 |
≤300℃ |
≤28m/s |
| 电源电压 |
调节特性 |
电液推杆型号 |
| 380V50HZ |
二位开关式 |
DYT系列 |
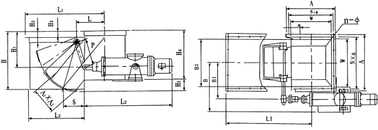
1.DSZ-□A(B)-Ⅰ型电液动扇形闸门
电液动扇形闸门(A、B型)

2.DSZ-□A(B)-Ⅱ型电液动扇形闸门
结构特点
本系列电液动动扇形闸门直接将电液推杆固定在闸门本体上,避免了用户在现场定位的烦恼,安装简便。
3.TDSZ-□电液动扇形闸门
用途:
本系列电液动扇形闸门是根据建材行业作业时的特殊需要,用作水泥熟料库除尘设备的理想卸料装置。
特点:
本闸门在出料口设置了防尘罩,避免了灰尘飞扬;采用电液推杆作动力源,取代气缸传动,节约了工程投资成本;阀体采用阶台结构,减
少了料流冲击;阀体关键部位铺设栅栏结构的耐磨衬板,减少了衬板直接磨损。
性能参数:
|
适用介质 |
干燥粉尘 |
工作温度 |
≤150℃ |
卸灰量 |
6-90m3/h |
